Tổng quan kiến trúc chùa tại Việt Nam:
Chùa chính là một trong những công trình xây dựng khá lớn, có khỉ đây là một quần thể kiến trúc mang tính tâm linh của người Việt. Việc xây dựng chính là một trong những công việc hết sức trọng đại, đặc biệt tại các làng quê Việt Nam.

Trước khi xây dựng chùa, người ta cần lựa chọn đất tốt, hướng tốt theo quan niệm phong thủy và ngày giờ tốt.

Tại Việt Nam chùa thường được xây dựng với những chất liệu tốt và quen thuộc như: gỗ, tre, gạch, ngói.

Chi phí xây dựng, tôn tạo chùa phần lớn đều do cac dân cư sinh sống nơi đây quyên góp và phần lớn đều được ghi nhận tên tuổi của những người công đức trên các bảng danh sách được khắc ghi bằng đá hoặc bằng đồ sành, sứ trên các bình hoa, chân đèn, bát hương.

Cấu trúc thiết kế chùa Việt:
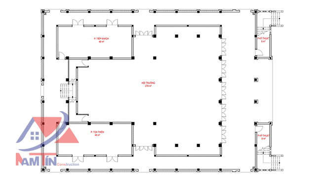
Cấu trúc trong thiết kế chùa Việt thường được xây dựng với những kiểu cấu trúc chữ Đinh.


Nhà chính diện đối diện với nhà tiền đường, chữ Công – chính diện với tiền đường song song nhau và được nối với nhau bằng nhà thiêu hương, còn với chữ Tam.

3 nếp nhà song song còn gọi là chùa Hạ, chùa Trung và chùa Thượng.

Với mỗi nơi họ sẽ có cách thiết kế khác nhau mang lại 1 phong thái và tâm linh riêng biệt.
Nguyên tắc trong thiết kế cấu trúc chùa Việt:
Mỗi công trình chùa Việt đều được xây dựng với nhiều phong cách và kiểu dáng khác nhau nhưng thường không thể thiếu đi những phần quan trọng như: cổng tam quan, sân chùa, nhà bái đường, chính diện, hành lang, hậu đường.
Ngoài những công trình chính đó thì chùa Việt còn bố trí thêm khác khung cảnh khác như: áo cá, hồ sen, giếng nước, vườn cây cảnh, vườn hoa..

Nét đặt trưng trong thiết kế kiến trúc chùa Việt:

Thiết kế kiến trúc chùa Việt, giúp mang lại một nét kiến trúc truyền thống đặc trưng của người dân Việt Nam được thể hiện ở dưới đây:

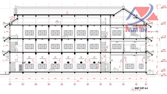
Phần mái chùa: triền mái thẳng, không cong, nhưng hơi hếch lên ở góc của mái, phần mái lớn chiếm 2/3 chiều cao của mặt đứng công trình, góc mái giúp làm cong uốn ngược, còn được gọi là đao quật.

Ở trên mái có sự xuất hiện của những hình ảnh con giống đều được làm từ đất nung hoặc vữa truyền thống, còn ở các bờ nóc có đặt gạch hoa chanh.

Đỉnh mái được gắn với con kìm (cá chép hóa rồng, rồng,…) ở 2 phần đầu bờ nóc,…. Có hệ thống mái đỡ hiên được làm bằng cây kẻ, bẩy, mái thường được lợp với ngói mũi hài, kiểu 4 mái hoặc 8 mái cong.

Cột chùa: Cột chùa thường tròn to mập, có phình ở giữa, có chân, chống đỡ sức nặng của cả một công trình to lớn.
Cột chùa thường có một cái, cột con và cột hiên, chùa thường có các vì được nối với nhau bằng các xà.
Cửa chùa: phần cửa chùa thường được làm từ gỗ tự nhiên với nhiều kiểu dáng khác nhau, là loại cửa bức bàn hoặc loại cửa thượng song hạ bản, ngưỡng cửa cây cao, phần cửa ra vào thường rộng lớn hơn còn cửa sổ nhỏ hơn.

Nét đặc trưng trong thiết kế đền chùa Việt.

Trên đây là tất những những lưu ý đặc biệt mà muốn chia sẻ với bạn trước khi thiết kế kiến trúc chùa nhằm mang lại một không gian tâm linh hoàn hảo.

Nếu bạn là người đang tìm kiếm đơn vị thiết kến kiến trúc tâm linh đền chùa hãy gọi hay tới chúng tôi để được tư vấn cũng như lựa chọn kiến trúc phù hợp nhất.























TƯ VẤN THIẾT KẾ THI CÔNG
NHÀ CHÙA ĐẸP
MOBILE: 093 7584 028
ZALO: 093 7584 028
177 Đường TTH, P. Tân Thới Hiệp, Q. 12,HCM
093 7584 028
xaydungnamtin@gmail.com
xaydungnamtin.com

Đang online: 2
